
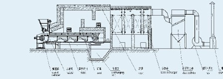
JRML系列高溫燃煤熱風爐全部采用機械鏈條式爐排燃煤裝置,換熱裝置可采用高溫板式、管式、熱管等換熱器、具有輸出溫度高,熱值大、熱效率高等優點,可制備100~550 ℃的清潔熱風,設備各項技術指標達到國內技術水平,廣泛應用于化工、食品、礦產品、建材等行業。可作為加熱,干燥、烘焙、熱定型熱源,可與各種干燥設備配套使用。

◆ 采用鏈條爐排,鋪煤厚度均勻可調,燃燒充分,熱效率高;
◆ 自動上煤、自動出渣,操作簡單,勞動強度低;
◆ 采用膨脹節結構,避免熱膨脹帶來的破壞,延長使用壽命;
◆ 采用多管除塵器,煙氣排放,滿足環保要求。

上一篇:GMF系列高溫燃煤熱風爐
下一篇:酒精回收塔